top of page
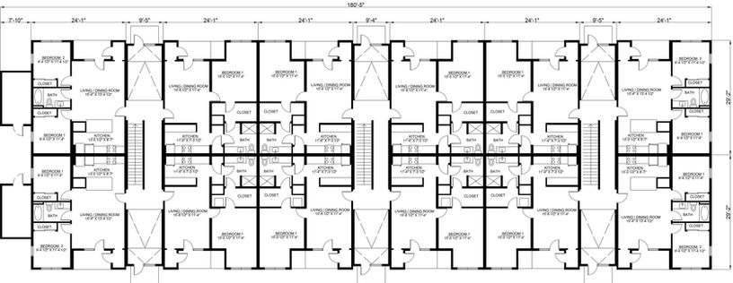
CYPRESS APARTMENTS
Email info@volumod.com for information

Description:
The Cypress is a customizeable multi-unit walk-up apartment layout. These well-designed and constructed three-story units focuses on energy-efficiency and increased density. Beautiful designer-chosen finishes and features abound including open-concept living.
Building Overview:
Dimensions | Stories as Designed | Unit Square Footage |
|---|---|---|
66'-2" x 195'-10" | 3 - 36 units total | Varies by unit |
Bedrooms | Bathrooms | Total Boxes in Structure |
|---|---|---|
2 | 2 | 81 |
Click on the Image for a Larger View
bottom of page



